EV_CREY11

La clienta tenía claro el estilo que quería, diseñadora de interiores Eva (enlace Instagram).

Se fue por motivos de trabajo a una isla costera, lugar que le ha marcado profundamente.

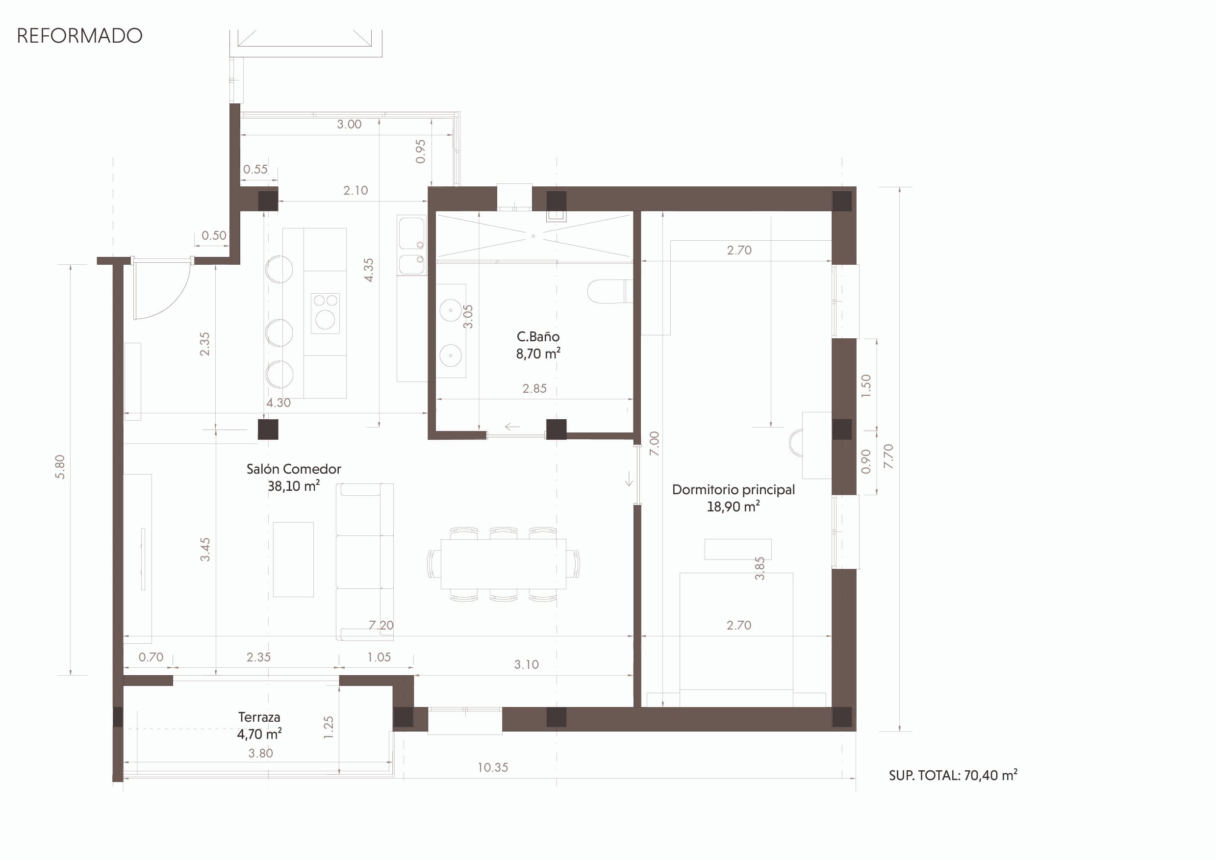
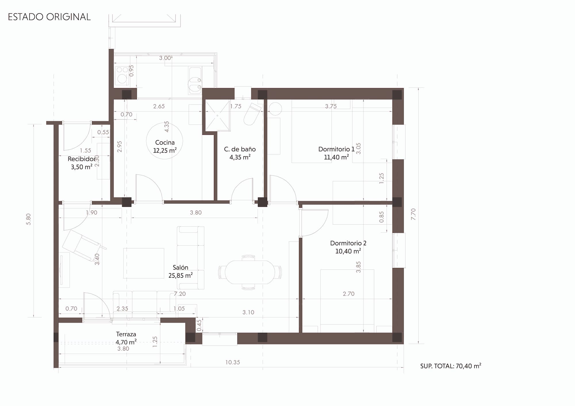
Su intención era transformar su casa de toda la vida que la vio crecer en algo más acorde a los tiempos actuales.

Me aportó unas referencias fotográficas bastante claras. Suelos cálidos, mobiliario moderno, pero a la vez robusto. Líneas marcadas que aportan carácter.

En el baño quería en una de las paredes algo que le recordara a su larga estancia en la isla. Al final optamos como solución un vinilo texturizado y con polímero de resina que simulara el vaivén de las olas del mar y pequeños toques dorados. Trayendo a la memoria atardeceres, arena bañada en sol y búsqueda de la prosperidad.

 

Render cocina (ventana patio interior), render baño (suelo como salón marrón oscuro y ventana translucida blanca.

Resumen de privacidad

Esta web utiliza cookies para que podamos ofrecerte la mejor experiencia de usuario posible. La información de las cookies se almacena en tu navegador y realiza funciones tales como reconocerte cuando vuelves a nuestra web o ayudar a nuestro equipo a comprender qué secciones de la web encuentras más interesantes y útiles.